SOUS OFFRE - EXCLUSIVITÉ – NOTRE-DAME-DU-MONT – T3 – 210 000 €

 

EXCLUSIVITÉ – NOTRE-DAME-DU-MONT – T3 – 57 M2 - 210 000 €

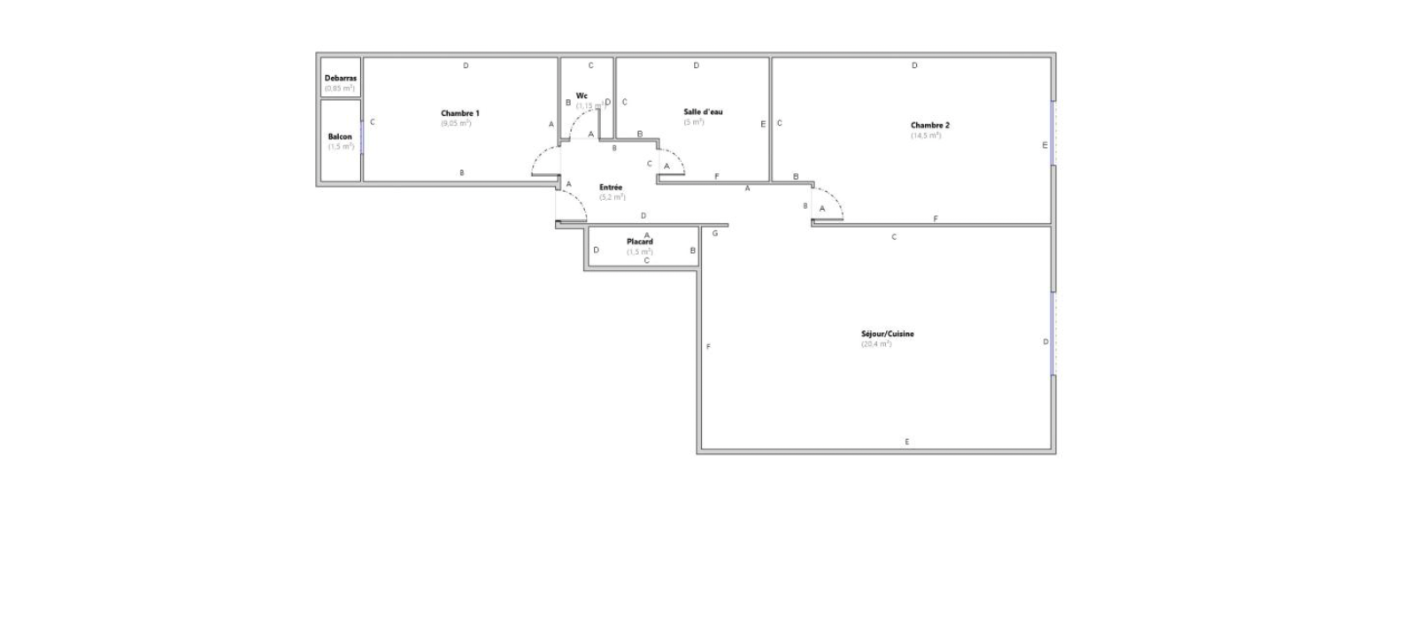
Au cœur du quartier vibrant de Notre-Dame-du-Mont, au 2ᵉ étage sur 3 sans ascenseur d’un immeuble des années 60 soigneusement entretenu, découvrez ce joli T3 traversant de 57 m², orienté Nord-Est / Sud-Ouest, offrant une belle luminosité tout au long de la journée.

L’espace se compose :

Côté Nord-Est :

Un espace de vie avec salon et cuisine ouverte de 20 m²

Une grande chambre de 14,5 m² avec rangement

Côté Sud-Ouest :

Une chambre de 9 m², ouverte sur un balcon de 1,5 m²

Au centre :

Une entrée de 5 m²

Une salle d’eau de 5 m²

Les atouts :

Appartement lumineux et traversant

Plan cohérent avec une bonne distribution des espaces

Double vitrage

Petite copropriété bien entretenue

Situation idéale à deux pas des commerces, cafés, transports et de la vie culturelle du quartier

Un bien fonctionnel et agréable, parfait pour un premier achat ou un investissement locatif.

INFORMATIONS LEGALES :

Chauffage individuel électrique

Charges : 50 € par mois
Foncier : 850 € par an

DPE : D/B indique de mauvaises performances énergétiques

10 lots - pas de procédure en cour

PRIX : 210 000 € (Frais d'agence inclus à la charge du vendeur)

Les informations sur les risques auxquels ce bien est exposé sont disponibles sur le site Géorisques : www.georisques.gouv.fr

Jean Baptiste Imbert : 04 96 12 22 94
Immatriculé au  R.S.A.C. MARSEILLE n° 753 007 046
Terrasse en ville immatriculé au R.S.A.C. MARSEILLE n° 478 760 218


Jean Baptiste imbert

Responsable de vente

166 Corniche Kennedy

13007 Marseille

04 96 12 22 94

ADRESSE DU BIEN

 
 

estimation

Rendez-vous en 12 h

 
 
TOP UNE, Unestan brunet